2026-Mar-15 | 14:00 - 16:00
Two or more storey | MLS: 16219845
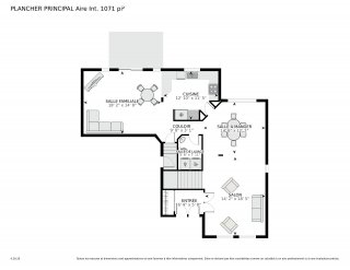
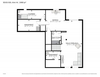
Located in desirable Westpark, this spacious 3+1 bedroom, 3+1 bathroom home presents a great opportunity. Built in 1994, it features a functional layout with generously sized rooms and a double garage. Main floor showcases cathedral ceilings and two skylights in living/dining room, filling the space with natural light. Kitchen opens to family room. Upstairs, three well-proportioned bedrooms, including a primary bedroom with ensuite bath. A large finished basement adds valuable living space. Close to parks, schools, synagogues, and everyday amenities, this property offers excellent potential to create a home tailored to your vision.
Inclusions : All light fixtures, Curtains and curtain rods, blinds, heat pump, dishwasher
Exclusions : Refrigerator in kitchen, Stove, refrigerator in basement
| Room | Dimensions | Level | Flooring |
|---|---|---|---|
| Other | 6.11 x 5.7 P | Ground Floor | Ceramic tiles |
| Other | 6.11 x 5.7 P | Ground Floor | Ceramic tiles |
| Living room | 18.1 x 14.2 P | Ground Floor | Parquetry |
| Living room | 18.1 x 14.2 P | Ground Floor | Parquetry |
| Dining room | 14.5 x 12.1 P | Ground Floor | Parquetry |
| Dining room | 14.5 x 12.1 P | Ground Floor | Parquetry |
| Hallway | 7.0 x 3.1 P | Ground Floor | Parquetry |
| Hallway | 7.0 x 3.1 P | Ground Floor | Parquetry |
| Washroom | 8.8 x 5.3 P | Ground Floor | Ceramic tiles |
| Washroom | 8.8 x 5.3 P | Ground Floor | Ceramic tiles |
| Kitchen | 12.7 x 8.11 P | Ground Floor | Ceramic tiles |
| Kitchen | 12.7 x 8.11 P | Ground Floor | Ceramic tiles |
| Family room | 20.9 x 14.6 P | Ground Floor | Parquetry |
| Family room | 20.9 x 14.6 P | Ground Floor | Parquetry |
| Primary bedroom | 21.7 x 13.2 P | 2nd Floor | Carpet |
| Primary bedroom | 21.7 x 13.2 P | 2nd Floor | Carpet |
| Hallway | 14.1 x 4.5 P | 2nd Floor | Carpet |
| Hallway | 14.1 x 4.5 P | 2nd Floor | Carpet |
| Bedroom | 14.7 x 10.9 P | 2nd Floor | Carpet |
| Bedroom | 14.7 x 10.9 P | 2nd Floor | Carpet |
| Bedroom | 12.4 x 11.3 P | 2nd Floor | Carpet |
| Bedroom | 12.4 x 11.3 P | 2nd Floor | Carpet |
| Bathroom | 8.9 x 4.11 P | 2nd Floor | Ceramic tiles |
| Bathroom | 8.9 x 4.11 P | 2nd Floor | Ceramic tiles |
| Playroom | 30.5 x 13.3 P | Basement | Carpet |
| Playroom | 30.5 x 13.3 P | Basement | Carpet |
| Bedroom | 17.7 x 5.11 P | Basement | Carpet |
| Bedroom | 17.7 x 5.11 P | Basement | Carpet |
| Home office | 13.3 x 12.5 P | Basement | |
| Home office | 13.3 x 12.5 P | Basement |
| Basement | 6 feet and over, Finished basement |
|---|---|
| Bathroom / Washroom | Adjoining to primary bedroom, Seperate shower |
| Heating system | Air circulation, Electric baseboard units |
| Driveway | Asphalt |
| Roofing | Asphalt and gravel |
| Proximity | Bicycle path, Cegep, Cross-country skiing, Daycare centre, Elementary school, Golf, High school, Highway, Hospital, Park - green area, Public transport, Réseau Express Métropolitain (REM) |
| Siding | Brick, Concrete stone |
| Garage | Double width or more, Fitted, Heated |
| Heating energy | Electricity |
| Parking | Garage, Outdoor |
| Sewage system | Municipal sewer |
| Water supply | Municipality |
| Foundation | Poured concrete |
| Zoning | Residential |
| Rental appliances | Water heater |
This property is presented in collaboration with EXP AGENCE IMMOBILIÈRE